賃貸一戸建
富任町5丁目F貸家
| 賃料(管理費等) | 55,000円(-円) | 敷金 | 1ヶ月 | 礼金 | 1ヶ月 |
|---|
| 交通 | JR山陰本線安岡駅 バス 園芸センター前 停歩1分 |
所在地 | 山口県下関市安岡町5丁目 |
|---|---|---|---|
| 築年月(築年数) | 2003/11(築22年) | 専有面積 | 47.97m² |
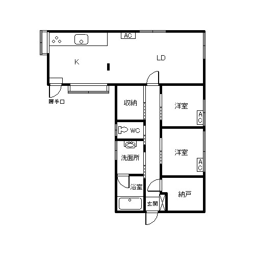
| 間取り | 2LDK+S(洋室3.31帖 洋室3.4帖 S2.5帖 LDK11.8帖) | 向き | - |
- 角部屋
- 追い焚き風呂
- 洗面所独立
- バス・トイレ別
- 温水洗浄便座
- エアコン付き
- シューズボックス
- 室内洗濯機置場
- コンロ
- 駐車場あり
- 駐車場2台以上
長安線沿い★平屋の戸建てです!2019年10月リフォーム済★
3口ガスコンロつきシステムキッチン、追い焚き給湯、エアコンつき♪
納戸と押入れがあり収納力もあります!駐車場1台込!
安岡駅まで徒歩13分、バス停も近くにあります♪
登録日:2025/10/27 有効期限:-
■物件詳細情報
Loading...
※物件掲載内容と現況に相違がある場合は現況を優先と致します
| 交通 | JR山陰本線安岡駅 バス 園芸センター前 停歩1分 |
||
|---|---|---|---|
| 所在地 | 山口県下関市安岡町5丁目 | ||
| 物件種目 | 賃貸一戸建 | 総戸数 | 1 |
| 周辺環境 | 安岡小学校まで約650m 安岡中学校まで約1200m ゆめシティまで約3100m・リブホールまで約920m・ファミリーマートまで約220m・ドラッグストアコスモスまで約960m・済生会下関総合病院まで約1550m |
||
| 賃料 | 55,000円 | 管理費等 | -円 |
|---|---|---|---|
| 敷金 | 1ヶ月 | 礼金 | 1ヶ月 |
| その他一時金 | J-COMは別途入居者にて加入要・費用要 | 保険等 | 要1年 12,000円 |
| 建物名・部屋番号 | 富任町5丁目F貸家 |
|---|---|
| 設備 | 角部屋|追い焚き風呂|洗面所独立|バス・トイレ別|温水洗浄便座|エアコン付き|シューズボックス|室内洗濯機置場|コンロ|駐車場あり|駐車場2台以上 |
| 備考 | 3口ガスコンロ・グリル付き・エアコン3台・全室照明器具(エアコンと照明器具はメンテナンス借主負担)勝手口・ほか |
| 間取り | 2LDK+S(洋室3.31帖 洋室3.4帖 S2.5帖 LDK11.8帖) | ||
|---|---|---|---|
| 専有面積 | 47.97m² | 築年月(築年数) | 2003/11(築22年) |
| 建物構造 | 軽量鉄骨 | 階建/階 | 1階建/1階 |
| 向き | - | ペット | - |
| 駐車場 | 0円 1台込 |
||
| 駐輪場 | 無 | ||
| 契約期間 | 2年 | ||
|---|---|---|---|
| 条件等 | - | ||
| 入居日 | 期日指定 2025/11中旬 | 仲介手数料 | 1.1ヵ月 |
| 取引態様 | 専属 | 更新料 | - |
| 保証会社 | 全保連利用必須・初回保証料として家賃総額の120%(月330円)もしくは30%(月1200円) | ||
| 物件番号 | F1 | 用途地域 | - |
| 情報登録日 | 2025/10/27 | 有効期限日 | - |
ご希望条件に近い物件をもっと見る
お気に入り物件(0)
現在、お気に入りの登録はありません。
















